912:中古戸建 日吉2丁目改装住宅
| 価格 | 1,758万円 |
|---|---|
| 所在地 | 熊本市南区日吉2丁目13-65 |
| 交通 | 熊本市南区 熊本市南区まで 徒歩8分 |
| 最寄駅 | JR西熊本駅まで 徒歩8分 |
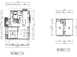
| 間取 | 3LDK |
| 土地面積 | 127.17m²(38.46坪) |
| 建物面積 | 76.17m²(23.04坪) |
| 私道面積 | 89.3m² |
| 築年月 | 1985/04 |
| 学区 | 小学校区:日吉小学校 1,100m 中学校区:日吉中学校 1,900m |
| 建物構造 | 木造 |
|---|---|
| 階建 | 地上2階建 |
| 建ぺい率 | 60% |
| 容積率 | 200% |
| 地目 | 宅地 |
| 用途地域 | 第一種住居地域 |
| 土地権利 | 所有権 |
| 取引態様 | 仲介 |
| 引渡時期 | 相談 |
| セットバック | |
|---|---|
| 接道 | |
| 諸費用 | |
| 他法条例 | |
| 建築確認番号 | |
| 取引条件有効期限 | 令和08年5月28日 |
特色
プロパンガス、公営水道、公共本下水
周辺地図
位置情報に関するご注意:現在位置情報は精査中の為、正確ではない場合があります。あくまで参考程度の情報となります。































